Quadrilocale in vendita

Milano, Via Privata Poggibonsi - Rembrandt
€ 850.000
4 locali 4 locali
128 Mq 128 Mq
2 bagni 2 bagni

Quadrilocale in vendita

Milano, Via Privata Poggibonsi - Rembrandt

Descrizione annuncio

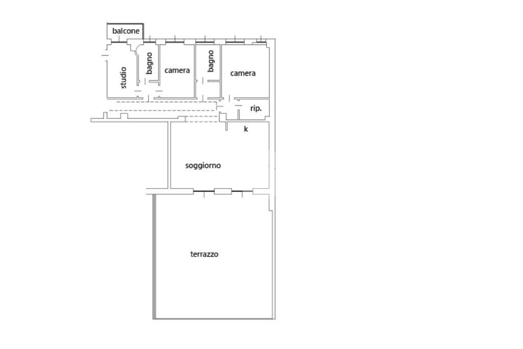
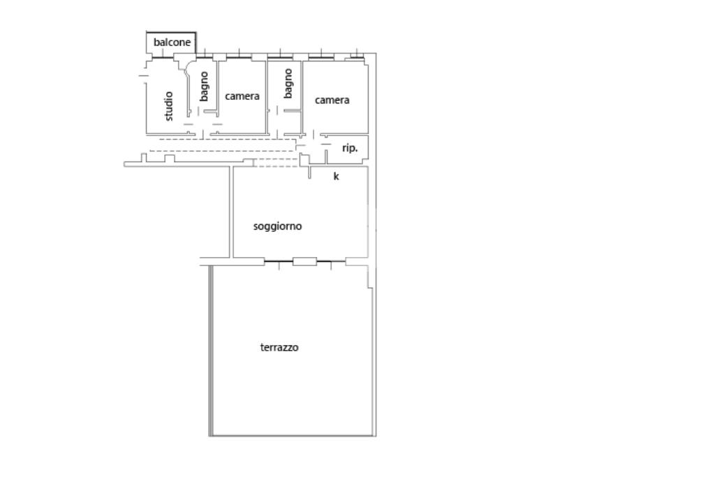
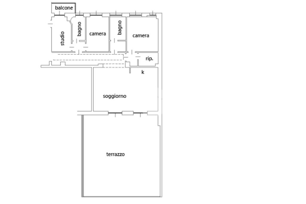
VIA PRIVATA POGGIBONSI

Nel cuore del quartiere Gambara, adiacente a Via Pisanello e a pochi passi da Via Marghera e Piazza De Angeli, centro nevralgico del commercio e della movida milanese, proponiamo un quadrilocale ristrutturato situato al primo piano alto di uno stabile signorile anni ’70, dotato di ascensore e ottimamente mantenuto nelle parti comuni. La posizione è particolarmente strategica: a brevissima distanza si trovano le fermate della metropolitana M1 Gambara e M1 Bande Nere e numerosi mezzi di superficie (linee 63, 80, NM1, 90 e 91) che collegano il quartiere al centro città in meno di dieci minuti. La zona è tranquilla e fornita di ogni servizio di prima necessità, tra cui supermercati come il Carrefour Market, farmacie, scuole, poste, bar e ristoranti, oltre a garantire un comodo accesso alle principali tangenziali e arterie autostradali.

L’appartamento si apre su un ingresso con disimpegno che conduce direttamente all’ampio soggiorno con cucina a vista, reso luminoso dalla doppia porta finestra che permette l’accesso al grande terrazzo di oltre 40 mq, affacciato sulla via. La zona notte comprende una camera matrimoniale con affaccio interno, un bagno finestrato dotato di box doccia e sanitari completi, una camera singola anch’essa con affaccio interno e un secondo bagno finestrato con doccia. A completamento della soluzione è presente uno studio, con possibilità di creare un accesso separato, ideale per chi necessita di uno spazio indipendente.

L’immobile si presenta completamente ristrutturato e rifinito con pavimentazione in gres porcellanato effetto parquet a correre in tutti gli ambienti, scelta che conferisce eleganza e continuità visiva. Il bagno è rifinito in ceramica di qualità, mentre gli infissi in PVC con doppio vetro e la porta blindata garantiscono comfort e sicurezza. Il riscaldamento è centralizzato e la proprietà dispone inoltre di una cantina di pertinenza.

Questa soluzione si presta perfettamente per famiglie o giovani coppie, grazie al contesto residenziale e alla qualità della ristrutturazione, ma rappresenta anche un’ottima opportunità di investimento data la posizione altamente strategica.

Ogni agenzia ha un proprio titolare ed è autonoma.

Le informazioni non costituiscono elementi contrattuali.

Mostra tutto

Nelle vicinanze

Trasporto pubblico Trasporto pubblico
Gambara
Gambara
290 m
Bande Nere
Bande Nere
590 m
Milano Porta Genova
Milano Porta Genova
2,7 Km
Milano San Cristoforo
Milano San Cristoforo
2,8 Km
Piazzale Brescia (Ospedale San Luca)
Piazzale Brescia (Ospedale San Luca)
620 m
Ricariche auto elettriche Ricariche auto elettriche
LIDL Milano Bezzi
820 m
Autotecnica 95
900 m
A2A Isola Digitale Piazza Amendola
1,2 Km
A2A AmendolaFiera
1,3 Km
A2A Isola Digitale Pagano
1,6 Km
Scuole Scuole
Scuole
420 m
Scuola Primaria Carlo Dolci
640 m
Scuola secondaria di primo grado Monteverdi
810 m
Scuola Superiore del Commercio del Turismo dei Servizi e delle Professioni
820 m
Scuola Beato Angelico
850 m
Farmacia Farmacia
Farmacia
180 m
Farmacia Dottoressa Elisa Raviola
430 m
Farmacia Comunale
430 m
Oppezzo
510 m
A.F.M. COMUNALE N.25
660 m
Ospedali Ospedali
Istituto Scientifico Ospedale San Luca
740 m
Casa di Cura San Giovanni
1,3 Km
Clinica Columbus
1,4 Km
Casa di Cura del Policlinico
1,9 Km
Ospedale San Carlo Borromeo
2,0 Km
Supermercati Supermercati
Carrefour Market
150 m
Punto Simply
230 m
Carrefour
480 m
Mercato Comunale
570 m
Esselunga
580 m
Negozi Negozi
Negozi
230 m
My Auchan
410 m
Carrefour Express
730 m
Il Forno Caffè delle Fantasie
830 m
Punto Discont
830 m
Bar Bar
Bar
360 m
Simpaty Bar
480 m
Baja Lounge Cafe
570 m
Morgan
690 m
Globe
700 m
Ristoranti Ristoranti
Gemelli Diversi
110 m
Ristoranti
150 m
La collina d'oro
260 m
Pizzeria Garden City
300 m
Calafuria
340 m
Mostra tutto

Caratteristiche

Rif.:
61144978
Piano:
1 di 7 con ascensore (Piano medio)
Balconi:
1
Terrazzi:
1
Camere da letto:
3
Arredamento:
Completo
Mostra tutto
Prezzo Prezzo
€ 850.000
Rata mutuo Rata mutuo
€ 4.019 / mese
Spese annue Spese annue
€ 4.000
Proponi il tuo prezzoProponi il tuo prezzo

Classe Energetica

E
E
E
E
E
E
E
E
E
EP globale non rinnovabile:
255.31 kW h/m² anno
EP globale rinnovabile:
255.31 kW h/m² anno
EP invernale del fabbricato:
EP estiva del fabbricato:
Anno di costruzione:
1960
Riscaldamento:
Centralizzato
Tipo impianto:
A pavimento
Tipo alimentazione:
Metano

Ti interessa visionare l'immobile?

Fissa un appuntamento  Fissa un appuntamento

Richiedi informazioni

Clicca su Leggi per aprire l'informativa
* Questi campi sono obbligatori

Calcola il tuo mutuo

Semplice e senza impegno
Anticipo

( % )
Mutuo

( % )

pochi semplici passi

inserisci i tuoi dati
Questionario completato
Grazie per aver richiesto un appuntamento senza impegno con un nostro Consulente del Credito e Assicurativo.

Hai inserito correttamente tutti i dati necessari e a breve riceverai una e-mail con un link da convalidare per inviare i tuoi dati.
Affiliato
Sviluppo Immobiliare Gambara Srl
Via Antonio Tolomeo Trivulzio, 14 20147 Milano (MI)

Il nostro staff


  • Hailenis De La Caridad Canet Guilarte
    Coordinatrice

  • Yinyu Hu
    Collaboratore

  • Natalia Zoi Pillisio
    Collaboratrice

  • Giancarlo Aurora
    Responsabile

  • Loris Sialino
    Responsabile
Via Antonio Tolomeo Trivulzio, 14 20147 Milano (MI)
Zona: Gambara-Trivulzio-Rubens
Mostra su mappa
Orari: Lunedì - Venerdì 09.00/20.00 - Sabato: 09.00/17.00
Affiliato
Sviluppo Immobiliare Gambara Srl
Via Antonio Tolomeo Trivulzio, 14 20147 Milano (MI)

2026 Tecnocasa Franchising S.p.A. - P. IVA 08365160152 - Via Monte Bianco 60/A 20089 Rozzano (MI). Ogni agenzia ha un proprio titolare ed è autonoma. Privacy policy | Policy utilizzo | Cookie policy